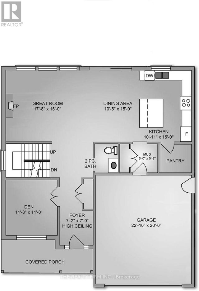
Welcome to Glen Meadows Estates! Located in the heart of Glencoe, a growing family-friendly community just 20 minutes from Strathroy and 40 minutes from London. Developed by Turner Homes, a reputable and seasoned builder with a legacy dating back to 1973, we proudly present 38 distinctive lots, each offering an opportunity to craft your ideal living space. Introducing The Riverview, a signature creation of Turner Homes. This two-storey layout features 2,388 square feet of thoughtfully designed space. With 4 bedrooms and 3 bathrooms, this home offers ample room for family and guests. The exterior showcases a captivating blend of brick, stone, and Hardie board, complete with a covered porch that sets a welcoming tone.Step inside to find ceramic and hardwood flooring throughout, beginning with a den off the foyer. The open-concept main floor boasts a kitchen equipped with stone countertops, plenty of cabinets, a large island, and a walk-in pantry. The kitchen seamlessly flows into the dining room and overlooks the great room, which is highlighted by a fireplace and abundant natural light from numerous windows. A mudroom attached to the garage completes the main floor.Upstairs, discover three generously sized carpeted bedrooms, each with ample closet space, along with a 4-piece bathroom. The primary bedroom is a true retreat, featuring a large walk-in closet and a luxurious 5-piece ensuite bath with a glass-enclosed shower and double sinks.The lower level offers untapped potential with a full unfinished basement, inviting your personal touch to create a space tailored to your preferences and needs. Act now to ensure you don't miss the chance to transform your dreams into reality at Glen Meadows Estates! Please note: Photos are of the same model previously built and are for illustrative purposes only. (id:4069)
Address
285 ELIZABETH STREET
List Price
$849,900
Property Type
Single Family
Type of Dwelling
Single Family
Transaction Type
Sale
Area
Ontario
Sub-Area
Southwest Middlesex (glencoe)
Bedrooms
4
Bathrooms
3
Floor Area
2000 - 2500 Sq. Ft.
Lot Size
20.2 x 52.3 M Sq. Ft.
MLS® Number
X12641886
Listing Brokerage
THE REALTY FIRM INC.
Basement Area
Full (Unfinished)
Postal Code
N0L1M0
Zoning
EU
Site Influences
Park, Place of Worship, Schools
Features
Flat site, Sump Pump
Amenities
Fireplace(s)
Open Houses
- January 18, 2:00 PM - 4:00 PM
- January 25, 12:00 PM - 2:00 PM
- January 31, 2:00 PM - 4:00 PM







































